



























1 / 28




























LOCAL TORRE INSIGNE 126mt2 COLONIA SAN BENITO 8vo NIVEL *cea.o
San Salvador, San Salvador
Alquiler
US$ 3,782.68
3
Hab.
1
Baños
2
Parqueo
126 M²
Construcción
Resumen
Código:
1961
Ciudad:
San Salvador
Provincia:
San Salvador
Sector:
San Salvador
Tipo de inmueble:
Locales Comerciales
Terreno:
null m²
Mantenimiento:
US$ 381.93
Descripción
LOCAL TORRE INSIGNE 126mt2 COLONIA SAN BENITO 8vo NIVEL
Precio Alquiler $ 3,347.50 + IVA
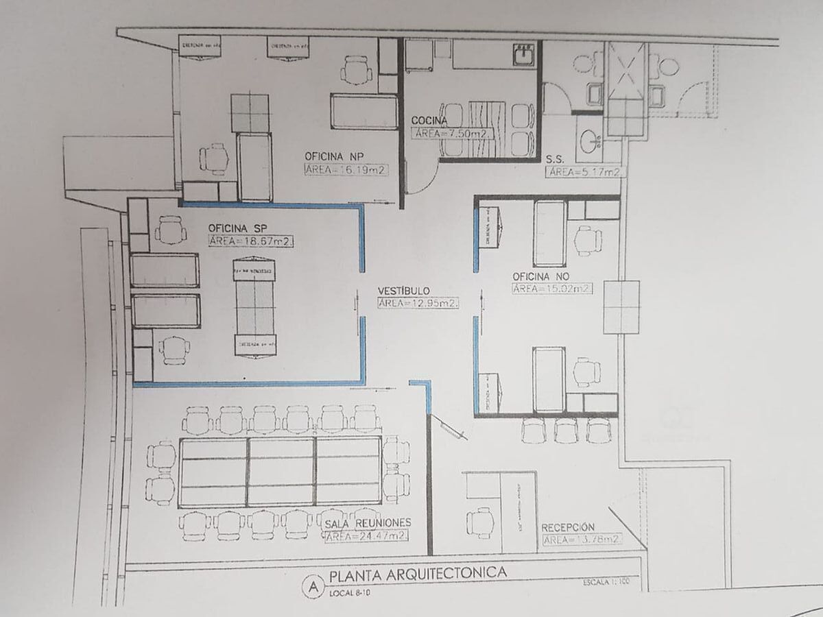
Local 126mt2 disponible en el edificio Insigne,
El local está distribuido de la siguiente forma:
3 oficinas amplias
1 sala de reuniones grande
1 área de cocineta
1 baño interno
1 recepción amplia
Para mayor información favor escriba a WhatsApp 7851 3928
11/07/2022 +0elioB
Amenidades
Acceso para personas con discapacidad
Aire acondicionado
Ascensor
Estacionamiento techado
Portero
Seguridad 24 Horas
Tiendas

Carlos Alberto Puente Cea
Agente Inmobiliario
Celular / WhatsApp:
+50378513928Correo electrónico:
[email protected]¿Te interesa esta propiedad?
Calculadora de Préstamos
Pago Mensual Estimado
N/A
